Get In Touch +
1243 Jefferson Avenue Brooklyn $250,000
  • 1,566
    BSF
  • $160
    $/BSF
1243 Jefferson Avenue
view photo

INVESTMENT HIGHLIGHTS

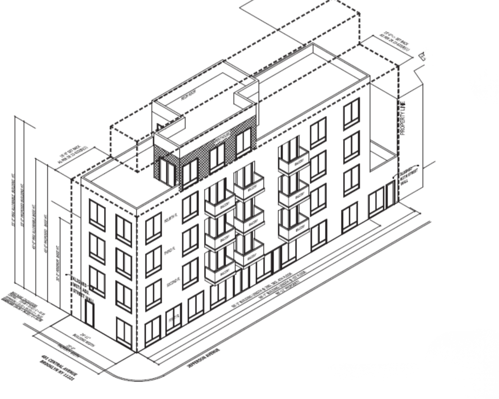
Invictus Property Advisors is pleased to announce the successful closing of an air rights transaction at 1243 Jefferson Avenue in Brooklyn, New York. Invictus represented the owner of the development rights and negotiated a sale totaling $250,000, allowing the adjacent property to enhance its as-of-right development potential. The transaction required careful coordination between ownership, legal counsel, and the development team to ensure a smooth transfer and alignment with zoning requirements.

Invictus Property Advisors continues to advise owners and developers on air rights sales, zoning lot development agreements (ZLDAs), and complex land-use transactions throughout New York City.

exclusive agents
similiar listings